Lake Homes Realty
Enter City, Zip or MLS

0 trumansburg road

Ithaca Town, NY 14850

$1,800,000

38.18 AC LOT
Land - Commercial
New Listing
Image 1: Site Map
Image 2: View from property
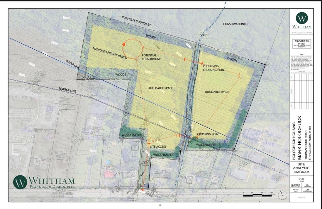
Image 3: Site Analysis
Image 4: Tax Map
Acreage 38.19
Status Active
MLS # R1664358
County Tompkins
More Info
Category Land - Commercial
Status Active
Acreage 38.19
MLS # R1664358
County Tompkins
Prime 38 +/- Acre Development Opportunity – Town of Ithaca An exceptional opportunity to shape the future of one of the most desirable communities in the region. This expansive 38+/- acre parcel is now available in the Town of Ithaca. Formerly approved in 2022 for a 106-lot subdivision known as the Holochuck project, the prior approvals have since expired. In 2023, the property was consolidated into a single tax parcel, offering a clean slate for visionary developers and investors. Designated “Semi-Rural Neighborhood” in the Town’s Comprehensive Plan, it is ideal for single-family residences, accessory dwelling units, clustered multi-residential developments, and preserved open space concepts. This designation provides flexibility for thoughtfully designed residential communities that align with the Town’s long-term planning vision. Any future development needs a new application and Town of Ithaca approval, allowing a buyer to propose a project suited to current market conditions. Town planning officials are open to meeting with prospective buyers to discuss development potential and approval pathways.
Location not available

Exterior Features

  • Construction Single Family
  • Garage No
  • Garage Description NoDriveway
  • Water Public
  • Sewer Other, SeeRemarks
  • Lot Description FlagLot, Other, SeeRemarks, GentleSloping

Interior Features

  • Fireplaces No

Neighborhood & Schools

  • Elementary School Beverly J Martin Elementary

Financial Information

  • Parcel ID 24.-3-8

Additional Services

Internet Service Providers

Listing Information

Listing Provided Courtesy of Goldenrod Real Estate LLC - deannahill@goldenrodre.com
Listings identified with the NYSAMLS IDX logo are provided courtesy of the NYSAMLS IDX Program.
Information Is Believed To Be Accurate But Not Guaranteed. © 2026 NYSAMLS, Inc.
Listing data is current as of 03/03/2026.

Contact Our Agent

By clicking “Submit”, you agree that Lake Homes Realty, its affiliates, and real estate professionals may contact you by phone, text, or email to any phone number and email address you provided, including by automated means, even if your number is on a federal, state, or our internal Do Not Call list. You also agree to our Terms of Use and Privacy Policy.