Lake Homes Realty
Enter City or Zip

1910 state road 16

St. Augustine, FL 32084

$2,700,000

3.5 AC LOT
Land - Unimproved Land
New Listing
Image 1: Plan B Featuring Outparcels
Image 2: plan B Conceptual Drawing
Image 3: Plan A 12 ac. w Strip Stores
Image 4: Plan A w Strip Stores #4
Acreage 3.5
Status Active
MLS # 2114353
County St. Johns
More Info
Category Land - Unimproved Land
Status Active
Acreage 3.5
MLS # 2114353
County St. Johns
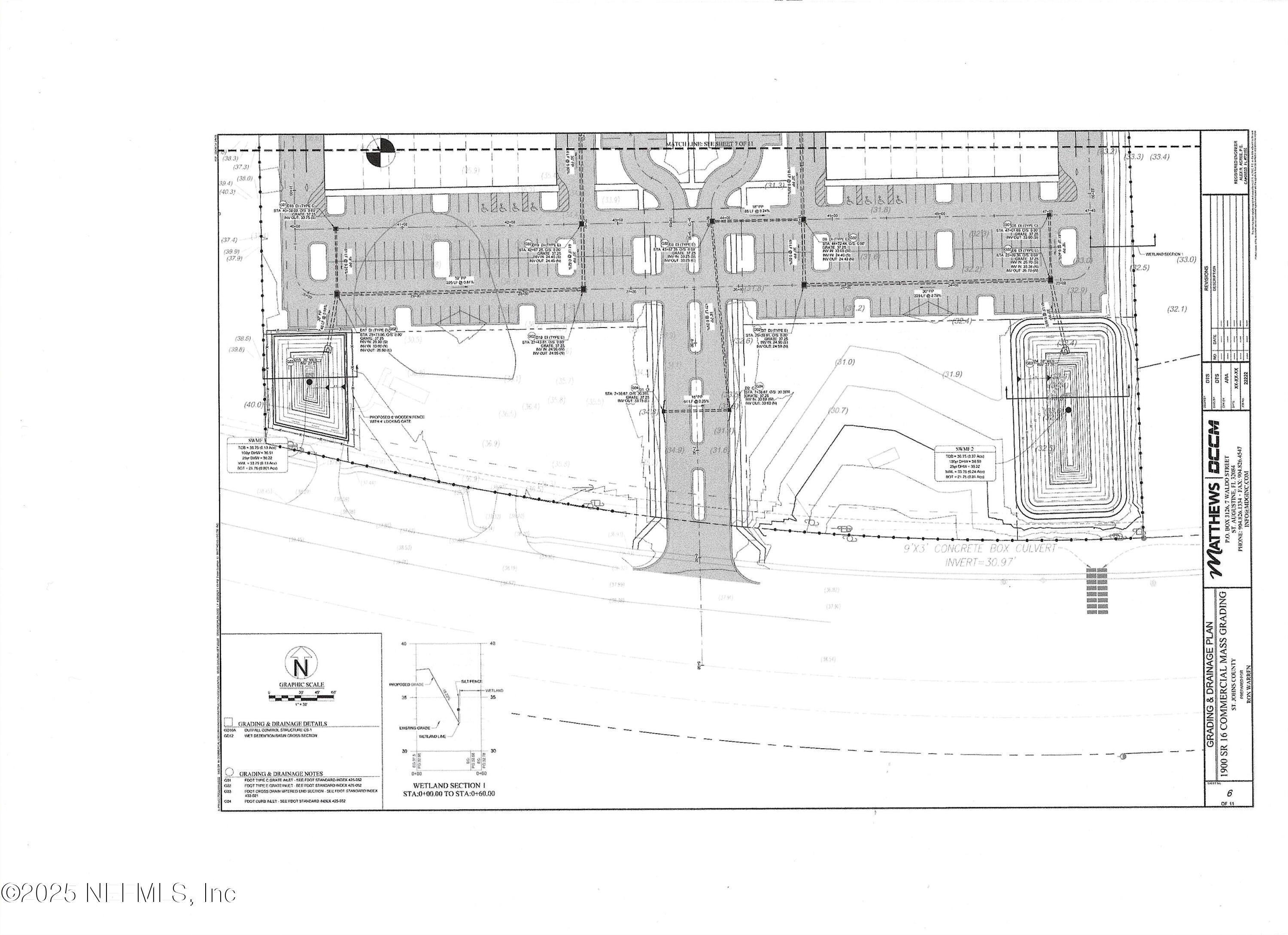
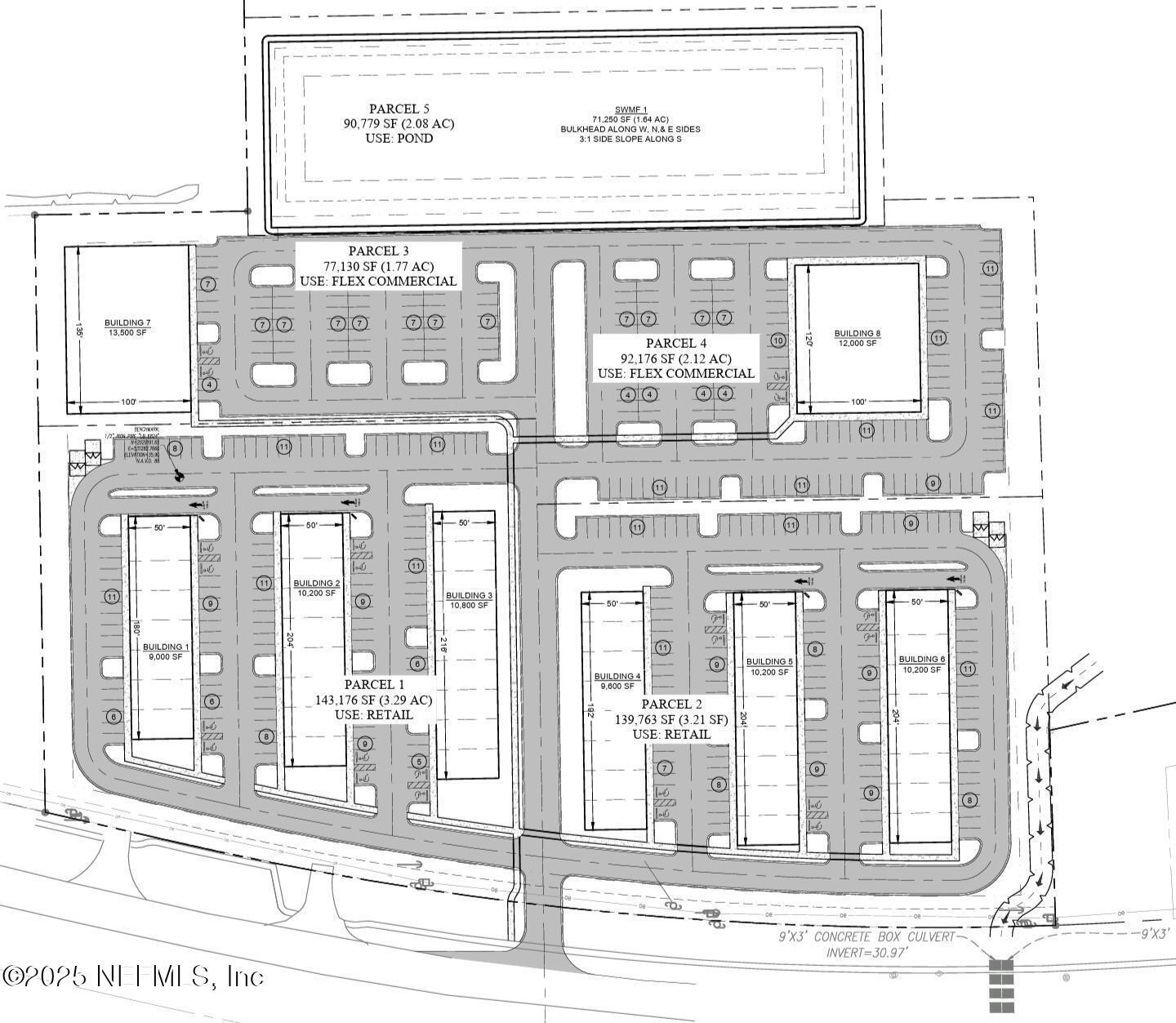
412 Foot Frontage per each 3.5 acre parcel or 823.5 Frontage for both (per tax roll). This is directly on SR 16 which is the Main Road in and out of Old St. Augustine, Fl. The $2.7M price is for the 3.5 acre site on the E. side of the drive. Site W of drive is mostly dry & has income. On last review there were only two other larger parcels available in the area. One had 200 ft and the other 225 feet of Frontage on 16. Please note that the 1900 (listing # 2114333) & this 1910 SR 16 listings are the same parcel with different approaches as to how it is marketed and developed. To be clear there are two engineer generated site plans in the works for this site depending on the developers vision and needs. Virtually all of SR 16 has become a High Demand/High Development Area. The vast majority of sites available two years ago are now in some phase of development. 3 of the 4 new housing projects in the area have recently come directly to 16 (please see pics regarding these developments). The upscale Tapestry located just to the West of subject site finished construction & is currently leasing. Another in the 1100 block of SR 16 & another in the 800 to 900 blk of SR 16 starts construction in Q1 2026. 2 of the 3 new housing starts are for 300+. The 4th housing development (Terrassa) is just N of 16 and E. of I-95 where the high end outlet mall was. Terrassa is also over 300 luxury apts. This high growth area is in need of commercial services to satisfy Mushrooming demand. Due to exposure this site qualifies as Prime. Non-residential projects being built on 16 include a dental bldg w a coffee shop and an emergency care bldg in the 800 block. An exotic car dealership (Sunday Drive) is coming soon to the 2100 block of 16. Lastly Atlantic Marine is soon to build a new boat showroom in the 2200 block of SR 16. The full 12 acre site (Listing # 2114333) is in the process of being planned & permitted for potential entitlements up to 100,000 sqft. In this 1910 SR 16 site plan it is geared for the developer and end user looking to take maximum advantage of the top end traffic count of roughly 43K/day (see attachment line 93.2). Note there is a Median Cut already in place on 16 going directly into the drive providing easy access for customers going in either direction. There will be two buildable 3 acre sites on each side plus a 1/2 acre retention in back of each for a total of 3.5 acres each side. Clients can purchase the full 7 acres or one full side (3.5 ac) or as little as 1.15 acres which includes their portion of the retention. Any which way you slice it your client can not possibly get better exposure than these sites afford. These full 3.5 acre sites will be ideal for your clients looking to build structures in the 15 to 30,000 ft range such as Convenience stores w gas pumps like Circle K, 7-11, Race Trac or even Buc-ee's. Other good fits are grocers like Trader Joe's, Sprouts, Fresh Market or popular Fitness Studios Zoning in front CI & CHT rear DO NOT DISTRURB TENANT!! In the alternate 12 acre 1900 SR 16 site plan (see listing # 255876) there are two smaller outparcels of approx 1.4 acres in front ideal for QSR's (quick serve restaurants like Five Guys, Cava, BurgerFi or Panda Express, Drive-Thru coffee & Beverage Shops like Dutch Brothers or Ellianos, Banks-Credit Unions, Urgent Care/Medical Office/Vision Care i.e. America's Best Contacts, or Dental like Heartland or Deca Dental. Also needed is a Pharmacy w Drive-Thru. Specialty Retail like Mattress Firm, Auto Zone, O'Reilly's or Wireless Providers. Car washes like Mr. Clean, Tommy's Tidal Wave or Mister Car Wash. Also a good fit for auto accessory shops like Tint World, Black Optix, Line-X or Color Glo. In the 1900 SR 16 site plan, in back of the outparcels there will be 2 sets of strip stores on either side of the driveway. Both w drive thru end caps. These retail strips could offer the needed services such as hair and nail salon, barber, dry cleaner, beauty supply, mini bank branches w atm machines, small sit down restaurants, pet care and grooming etc. In back of the strip stores there is a space that can accommodate a large structure with a footprint of 15,000 sqft and can go up to 5 stories. A structure like that would be ideal for Commercial Flex space, a hotel, or potentially a larger scale bed and breakfast built with an Old St. Augustine motif. A few other options include: Tech Schools, College Satellite facilities, Medical/profession office bldg, Top end (Covered) RV and Boat Storage, Large Scale Fitness Facility, Recreation facilities, Adult & Child Care Centers etc. Please check attached Zoning charts to confirm if your project applies. Property currently has a 3000 ft metal structure & two businesses on site W. of the drive, these are not necessarily being considered in the valuation.
Location not available

Exterior Features

  • Construction Single Family
  • Garage No
  • Water P
  • Sewer S
  • Lot Description Split Possible, Wetlands

Neighborhood & Schools

  • Subdivision Ravenswood
  • Elementary School Crookshank
  • Middle School Murray
  • High School St. Augustine

Financial Information

  • Parcel ID 0880300000

Additional Services

Internet Service Providers

Listing Information

Listing Provided Courtesy of FLORIDA HOMES REALTY & MTG LLC
The data for this listing came from the North East Florida MLS.
Listing data is current as of 10/29/2025.

Contact our Agent !

By clicking “Submit”, you agree that Lake Homes Realty, its affiliates, and real estate professionals may contact you by phone, text, or email to any phone number and email address you provided, including by automated means, even if your number is on a federal, state, or our internal Do Not Call list. You also agree to our Terms of Use and Privacy Policy.