Lake Homes Realty
Enter City, Zip or MLS

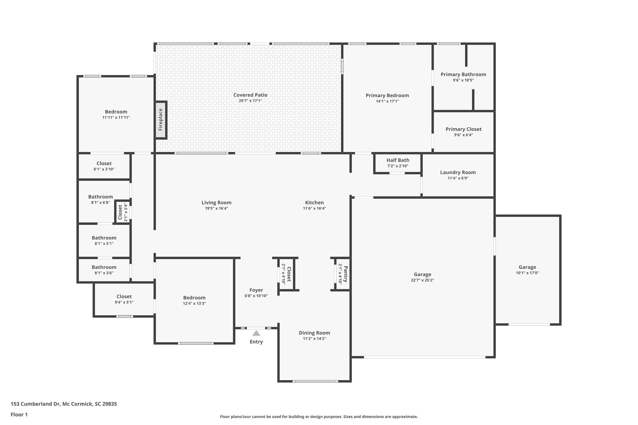
153 cumberland dr drive

McCormick, SC 29835

3 BEDS 2-Full 1-Half BATHS
Residential - Single Family
Image 1
Bedrooms 3
Total Baths 3
Full Baths 2
Status Off Market
MLS # 546809
County McCormick
More Info
Category Residential - Single Family
Status Off Market
MLS # 546809
County McCormick
Charming Lakefront Home in Savannah Lakes Village Welcome to 153 Cumberland Drive, the weather is perfect to come enjoy a cozy evening by the custom outdoor fire pit or relax in the hot tub that has just been filled and ready to enjoy. This serene lakefront property in the heart of Savannah Lakes Village. This 3-bedroom, 2.5-bath home offers 1,994 square feet of comfortable living space. Offering great storage space in each bedroom. Dining room or enjoy meals at the kitchen island, perfect for two. Nestled on a quiet street with a wooded lot, this home provides a perfect blend of tranquility and convenience. Enjoy your own dock slip, with 25 years remaining on the lease, a large covered screened porch complete with fireplace and custom power shades, ready for fun entertaining. Home offers a 2.5 car garage, perfect for your cars and golf cart or work shop area. There is an extended brick paver patio with custom built fire pit and includes a saltwater hot tub. Plus, take advantage of the vibrant community amenities, including two 18-hole golf courses, pickleball, tennis, recreation centers, and restaurants. Schedule your showing today!
Location not available

Exterior Features

  • Style Ranch
  • Construction Single Family
  • Siding Composition
  • Exterior Dock, Insulated Doors, Spa/Hot Tub
  • Roof Composition
  • Garage Yes
  • Garage Description Attached, Concrete, Garage
  • Water Public
  • Sewer Public Sewer
  • Lot Dimensions 103 x 132 x 139 x 116 x 308
  • Lot Description Cove, Lake Front, Landscaped, Sprinklers In Front

Interior Features

  • Appliances Dishwasher, Electric Range, Electric Water Heater, Microwave, Refrigerator
  • Heating Fireplace(s), Heat Pump
  • Cooling Ceiling Fan(s), Heat Pump
  • Fireplaces 2
  • Fireplaces Description Great Room, Other
  • Year Built 2019

Neighborhood & Schools

  • Subdivision Savannah Lakes Village
  • Elementary School McCormick Elementary
  • Middle School MCCORMICK MIDDLE
  • High School McCormick

Financial Information

  • Parcel ID 087005027

Listing Information

Properties displayed may be listed or sold by various participants in the MLS.