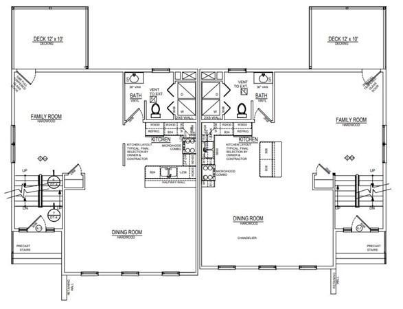
New townhome development near Glen Echo Lake in Charlton. Located in the Dudley-Charlton Regional School District, construction has begun on the 1st phase & units are available for reservations. This attached townhouse unit will feature an open concept floor plan that flow nicely from the kitchen into the dining room & family room and all units will feature premium finishes including granite counters, SS appliances and hardwood & tile flooring. Family room walks out to a 12x10 deck overlooking backyard. 1st floor also offers a half bath with laundry. Upstairs you will find 3 bedrooms w/ plush carpet including a spacious master bedroom w/ full bath and walk-in closet. The 2nd floor also has a full bath and ample closet space. All units will include a 2 car attached garage and plenty of parking. Exterior will feature gorgeous vinyl shake style siding details and beautiful stonework