Lake Homes Realty
Enter City, Zip or MLS

3040 kensington avenue

DAVENPORT, FL 33837

$855,000

4 BEDS 4 BATHS
2,760 SQFT0.14 AC LOT
Residential - Single Family
Image 1
Image 2
Image 3
Image 4
Bedrooms 4
Total Baths 4
Full Baths 3
Square Feet 2760
Acreage 0.14
Status Pending
MLS # O6373000
County Polk
More Info
Category Residential - Single Family
Status Pending
Square Feet 2760
Acreage 0.14
MLS # O6373000
County Polk
Listed By: Listing Agent Matthew S. Brown
ABD REALTY, INC. - (863) 420-2100
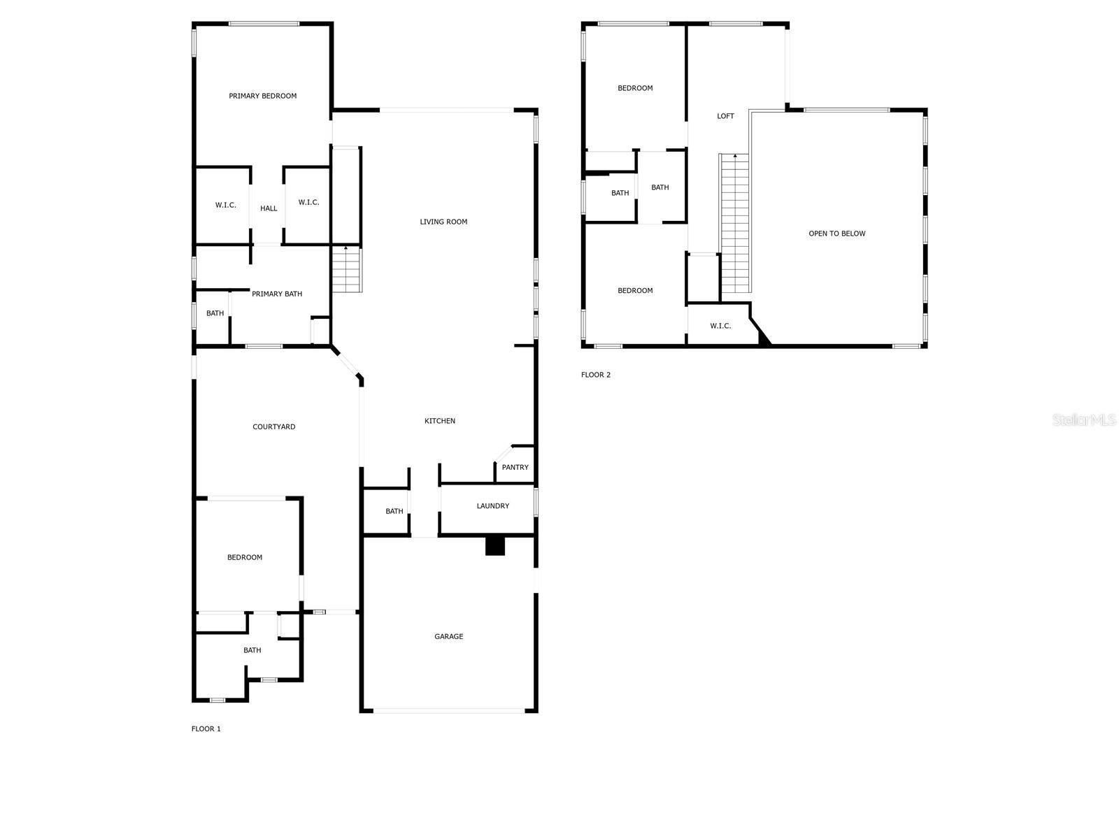
The Santa Barbara is our newest floorplan and it's sure to be one of our most popular. This home combines all of the greatest elements of the classic ABD courtyard with the space to build a golf-front pool in the rear. The moment you walk through the front door into the spacious courtyard, you will know that this home is unique in this market. The spacious casita is perfect for a home office or in-law suite. Once inside, you will marvel at the gourmet kitchen and soaring 20' ceilings. This contemporary show stopper will look good on your instagram! The living space opens to a gigantic rear lanai that is perfect for entertaining - complete with a pre-plumb and prewire for outdoor kitchen. The primary bedroom sits on the first floor, and bedrooms two and three are a short climb up the stairs, along with a spacious loft and scenic balcony looking out on the 11th hole of the golf course. This home is the pinnacle of luxury Florida living. Call us today!
Location not available

Exterior Features

  • Construction Single Family Residence
  • Siding Block, Stone, Stucco
  • Roof Tile
  • Garage Yes
  • Garage Description 2 Garage Spaces
  • Water None
  • Sewer Public Sewer
  • Lot Description In County, Landscaped, Level, Near Golf Course, On Golf Course, Sidewalk, Paved, Private

Interior Features

  • Appliances Built-In Oven, Cooktop, Dishwasher, Disposal, Microwave, Range Hood
  • Heating Central
  • Cooling Central Air
  • Basement Slab
  • Living Area 2,760 SQFT
  • Year Built 2025

Neighborhood & Schools

  • Subdivision HAMPTON GREEN AT PROVIDENCE

Financial Information

  • Parcel ID 28-26-19-932946-000250

Additional Services

Internet Service Providers

Listing Information

Listing Provided Courtesy of ABD REALTY, INC. - (863) 420-2100
Listings courtesy of the My Florida Regional MLS DBA Stellar MLS as distributed by MLS GRID.

IDX information is provided exclusively for consumers’ personal noncommercial use, that it may not be used for any purpose other than to identify prospective properties consumers may be interestedin purchasing, that the data is deemed reliable but is not guaranteed by MLS GRID, and that the use of the MLS GRID Data may be subject to an end user license agreement prescribed by the Member Participant's applicable MLS if any and as amended from time to time. MLS GRID may, at its discretion, require use of other disclaimers as necessary to protect Member Participant, and/or their MLS from liability.

Based on information submitted to the MLS GRID as of 02/01/2026 04:08:22 UTC. All data is obtained from various sources and may not have been verified by broker or MLS GRID. Supplied Open House Information is subject to change without notice. All information should be independently reviewed and verified for accuracy. Properties may or may not be listed by the office/agent presenting the information.

The Digital Millennium Copyright Act of 1998, 17 U.S.C. § 512 (the "DMCA") provides recourse for copyright owners who believe that material appearing on the Internet infringes their rights under U.S. copyright law. If you believe in good faith that any content or material made available in connection with our website or services infringes your copyright, you (or your agent) may send us a notice requesting that the content or material be removed, or access to it blocked. Notices must be sent in writing by email to: DMCAnotice@MLSGrid.com.

The DMCA requires that your notice of alleged copyright infringement include the following information: (1) description of the copyrighted work that is the subject of claimed infringement; (2) description of the alleged infringing content and information sufficient to permit us to locate the content; (3) contact information for you, including your address, telephone number and email address; (4) a statement by you that you have a good faith belief that the content in the manner complained of is not authorized by the copyright owner, or its agent, or by the operation of any law; (5) a statement by you, signed under penalty of perjury, that the information in the notification is accurate and that you have the authority to enforce the copyrights that are claimed to be infringed; and (6) a physical or electronic signature of the copyright owner or a person authorized to act on the copyright owner’s behalf. Failure to include all of the above information may result in the delay of the processing of your complaint.

© 2026 My Florida Regional MLS DBA Stellar MLS.
Listing data is current as of 02/01/2026.

Contact Our Agent

By clicking “Submit”, you agree that Lake Homes Realty, its affiliates, and real estate professionals may contact you by phone, text, or email to any phone number and email address you provided, including by automated means, even if your number is on a federal, state, or our internal Do Not Call list. You also agree to our Terms of Use and Privacy Policy.