Lake Homes Realty
Enter City, Zip or MLS

24 sawdust lane

Palm Coast, FL 32137

$384,990

5 BEDS 3 BATHS
2,499 SQFT
Residential - Single Family
Waterfront
Image 1: UPDATED ext
Image 2: 02 Lot 358 Front medium. side view Compl
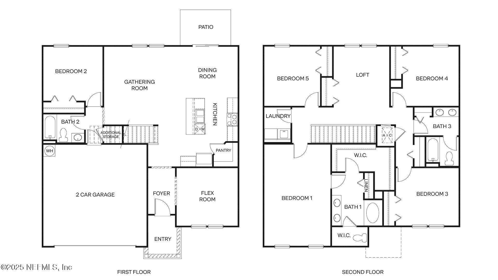
Image 3: 2499Hayden_Floorplan_MAR2023_WEB
Image 4: Home-Is-Connected_Flyer_8-5x11_NoDot_2
Bedrooms 5
Total Baths 3
Full Baths 3
Square Feet 2499
Status Active
MLS # 2120299
County Flagler
More Info
Category Residential - Single Family
Status Active
Square Feet 2499
MLS # 2120299
County Flagler
This impressive 2,499 square foot two story, five-bedroom, three bath, two car garage floor plan is perfect for large families! It has a bright light filled den as you walk in the front door. An open kitchen, looking out over the spacious gathering room and dining nook. At the heart of the kitchen is a large island where homeowners will enjoy preparing meals while entertaining family and friends. There is one bedroom and bath downstairs perfect for a home office or out of town guests. Upstairs, the oversized main suite includes an amazing bathroom with dual vanity and amazing walk-in closet. The loft makes a perfect playroom. The bonus is the large laundry room located upstairs for convenience. The Hayden offers future homeowners an excellent new construction home with energy-efficient features in neighborhoods across North Florida!
Location not available

Exterior Features

  • Style Traditional
  • Construction Single Family
  • Siding Shingle
  • Roof Shingle
  • Garage Yes
  • Garage Description 2
  • Water P
  • Sewer P

Interior Features

  • Appliances Dishwasher, Disposal, Electric Range, Electric Water Heater, Microwave
  • Heating Central
  • Cooling Central Air
  • Living Area 2,499 SQFT
  • Year Built 2026

Neighborhood & Schools

  • Subdivision Sawmill Branch
  • Elementary School Belle Terre
  • Middle School Indian Trails
  • High School Matanzas

Financial Information

  • Parcel ID 2110305416000003600

Additional Services

Internet Service Providers

Listing Information

Listing Provided Courtesy of D R HORTON REALTY INC
The data for this listing came from the North East Florida MLS.
Listing data is current as of 02/12/2026.

Contact Our Agent

By clicking “Submit”, you agree that Lake Homes Realty, its affiliates, and real estate professionals may contact you by phone, text, or email to any phone number and email address you provided, including by automated means, even if your number is on a federal, state, or our internal Do Not Call list. You also agree to our Terms of Use and Privacy Policy.