Lake Homes Realty
Enter City, Zip or MLS

523 saddlewood lane

WINTER SPRINGS, FL 32708

$575,000

4 BEDS 3 BATHS
2,315 SQFT0.2 AC LOT
Residential - Single Family
Image 1
Image 2
Image 3
Image 4
Bedrooms 4
Total Baths 3
Full Baths 3
Square Feet 2315
Acreage 0.21
Status Pending
MLS # O6381962
County Seminole
More Info
Category Residential - Single Family
Status Pending
Square Feet 2315
Acreage 0.21
MLS # O6381962
County Seminole
Listed By: Listing Agent Sanjeev Malik
EXP REALTY LLC - (888) 883-8509
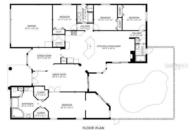
Under contract-accepting backup offers. Step through grand double doors into this beautifully updated 4 bedroom, 3 bath pool home filled with natural light and thoughtful design. The bright, open living space features a cozy wood burning fireplace and panoramic views of the screened pool and deck, creating the perfect setting for everyday living and entertaining. The fully renovated kitchen shines with brand new quartz California style countertops, new 42 inch white shaker cabinets, double sinks, and a convenient indoor laundry room just steps away. Fresh interior paint gives the entire home a crisp, modern feel. Designed with a split floor plan for privacy, the spacious primary suite offers dual walk in closets, a relaxing garden tub, and a glass walk in shower. Bedrooms two and three share a full bath, while the fourth bedroom and third bath at the rear of the home serve perfectly as a private in law suite or guest retreat with easy pool access. Multiple sliding glass doors open to a covered, screened pool area with space for outdoor dining and grilling, ideal for enjoying Florida living year round. Roof 2014, AC 2012, and a new 40 gallon electric water heater in 2025. Located in desirable Winding Hollow, you are just minutes from the Cross Seminole Trail, Central Winds Park with new pickleball courts, dog park, sports fields, playgrounds, and year round community events. Easy access to UCF, Seminole State College, 417, 419, east coast beaches, and Orlando attractions makes this home both convenient and connected. Move in ready and designed for comfort, this one checks all the boxes.
Location not available

Exterior Features

  • Construction Single Family Residence
  • Siding Concrete, Stucco
  • Roof Shingle
  • Garage Yes
  • Garage Description 2 Garage Spaces
  • Water Public
  • Sewer Public Sewer

Interior Features

  • Appliances Dishwasher, Microwave, Range, Refrigerator
  • Heating Central
  • Cooling Central Air
  • Basement Block
  • Fireplaces 1
  • Fireplaces Description Family Room, Wood Burning
  • Living Area 2,315 SQFT
  • Year Built 1996

Neighborhood & Schools

  • Subdivision WINDING HOLLOW UNIT 2

Financial Information

  • Parcel ID 35-20-30-5MM-0000-1080
  • Zoning R-1A

Additional Services

Internet Service Providers

Listing Information

Listing Provided Courtesy of EXP REALTY LLC - (888) 883-8509
Listings courtesy of the My Florida Regional MLS DBA Stellar MLS as distributed by MLS GRID.

IDX information is provided exclusively for consumers’ personal noncommercial use, that it may not be used for any purpose other than to identify prospective properties consumers may be interestedin purchasing, that the data is deemed reliable but is not guaranteed by MLS GRID, and that the use of the MLS GRID Data may be subject to an end user license agreement prescribed by the Member Participant's applicable MLS if any and as amended from time to time. MLS GRID may, at its discretion, require use of other disclaimers as necessary to protect Member Participant, and/or their MLS from liability.

Based on information submitted to the MLS GRID as of 04/30/2026 12:05:50 UTC. All data is obtained from various sources and may not have been verified by broker or MLS GRID. Supplied Open House Information is subject to change without notice. All information should be independently reviewed and verified for accuracy. Properties may or may not be listed by the office/agent presenting the information.

The Digital Millennium Copyright Act of 1998, 17 U.S.C. § 512 (the "DMCA") provides recourse for copyright owners who believe that material appearing on the Internet infringes their rights under U.S. copyright law. If you believe in good faith that any content or material made available in connection with our website or services infringes your copyright, you (or your agent) may send us a notice requesting that the content or material be removed, or access to it blocked. Notices must be sent in writing by email to: DMCAnotice@MLSGrid.com.

The DMCA requires that your notice of alleged copyright infringement include the following information: (1) description of the copyrighted work that is the subject of claimed infringement; (2) description of the alleged infringing content and information sufficient to permit us to locate the content; (3) contact information for you, including your address, telephone number and email address; (4) a statement by you that you have a good faith belief that the content in the manner complained of is not authorized by the copyright owner, or its agent, or by the operation of any law; (5) a statement by you, signed under penalty of perjury, that the information in the notification is accurate and that you have the authority to enforce the copyrights that are claimed to be infringed; and (6) a physical or electronic signature of the copyright owner or a person authorized to act on the copyright owner’s behalf. Failure to include all of the above information may result in the delay of the processing of your complaint.

© 2026 My Florida Regional MLS DBA Stellar MLS.
Listing data is current as of 04/30/2026.

Contact Our Agent

By clicking “Submit”, you agree that Lake Homes Realty, its affiliates, and real estate professionals may contact you by phone, text, or email to any phone number and email address you provided, including by automated means, even if your number is on a federal, state, or our internal Do Not Call list. You also agree to our Terms of Use and Privacy Policy.